- [神戸の店舗・事務所 テナントホーム] TOP
- 店舗・事務所を探す
- 神戸市中央区磯上通4丁目の店舗詳細
物件詳細情報
神戸市中央区磯上通4丁目の店舗詳細
神戸市中央区磯上通(JR東海道線(神戸線)三ノ宮駅)の店舗詳細
![]() |
![]() |
||||
| その他の写真 | ![]() |
![]() |
![]() |
![]() |
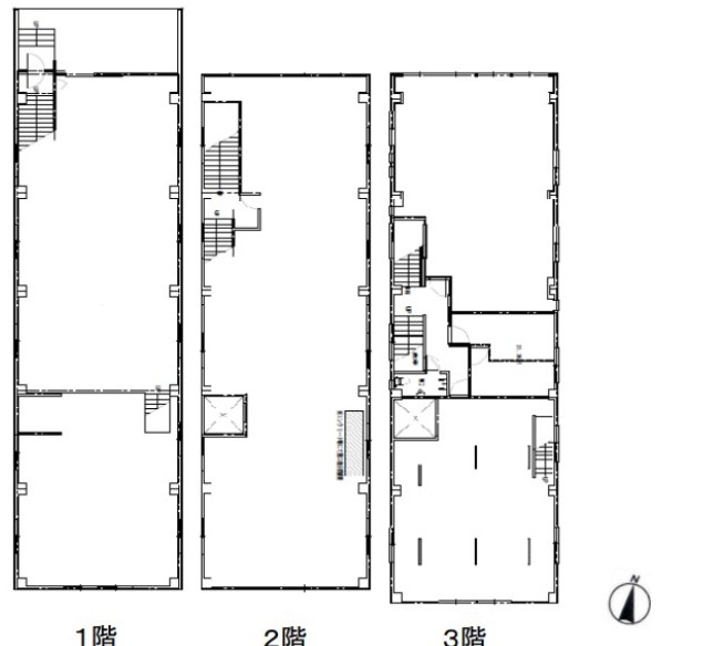
※画像をクリックすると 拡大表示します。 |
|---|---|---|---|---|---|
| テナントホーム
TEL.078-335-7835 |
物件番号 | 200027012265 |
|---|---|---|
|
||

078-335-7835














