- [神戸の店舗・事務所 テナントホーム] TOP
- 店舗・事務所を探す
- 神戸市中央区磯辺通3丁目の事務所詳細
物件詳細情報
神戸市中央区磯辺通3丁目の事務所詳細
神戸市中央区磯辺通(阪神本線神戸三宮駅)の事務所詳細
![]() |
![]() |
||||
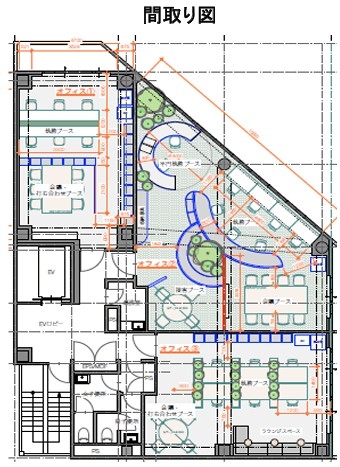
| その他の写真 | ![]() |
![]() |
![]() |
※画像をクリックすると 拡大表示します。 |
|
|---|---|---|---|---|---|
![]() |
|||||
| テナントホーム
TEL.078-335-7835 |
物件番号 | 200027012231 |
|---|---|---|
|
||

078-335-7835














