- [神戸の店舗・事務所 テナントホーム] TOP
- 店舗・事務所を探す
- 神戸市中央区琴ノ緒町5丁目の店舗詳細
物件詳細情報
神戸市中央区琴ノ緒町5丁目の店舗詳細
神戸市中央区琴ノ緒町(JR東海道線(神戸線)三ノ宮駅)の店舗・居抜き店舗詳細
![]() |
![]() |
||||
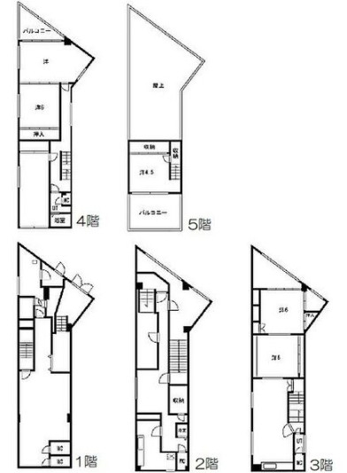
| その他の写真 | ![]() |
![]() |
![]() |
![]() |
※画像をクリックすると 拡大表示します。 |
|---|---|---|---|---|---|
![]() |
![]() |
![]() |
![]() |
||
| テナントホーム
TEL.078-335-7835 |
物件番号 | 200027012212 |
|---|---|---|
|
||

078-335-7835


















