- [神戸の店舗・事務所 テナントホーム] TOP
 - 店舗・事務所を探す
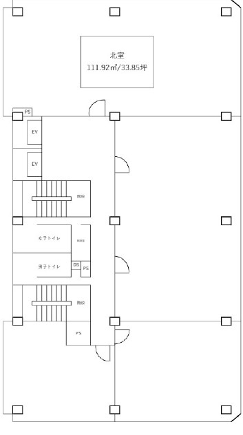
 - 神戸市中央区磯辺通4丁目の事務所詳細
 
物件詳細情報
神戸市中央区磯辺通4丁目の事務所詳細
神戸市中央区磯辺通(JR東海道線(神戸線)三ノ宮駅)の事務所詳細
![]()  | 
			                        ![]()  | 
			                    ||||
| その他の写真 | ![]()  | 
			                        ![]()  | 
			                        ※画像をクリックすると 拡大表示します。  | 
			                    ||
|---|---|---|---|---|---|
| テナントホーム
			                             TEL.078-335-7835  | 
			                        物件番号 | 200027012170 | 
|---|---|---|
			                            
  
			                         | 
			                    ||

078-335-7835












